На модернизацию контейнерных площадок в округе выделят 3,5 миллиона
- четверг, 2 апр., 12:41
-
1
-
80
- четверг, 2 апр., 12:41
-
1
-
80

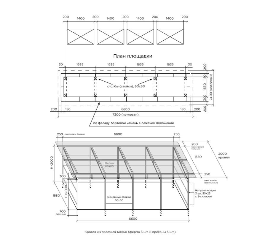
В документации речь идёт о 16 объектах закупки, на которых предусмотрены различные виды работ по монтажу конструкций.

В техзадание включено устройство 15 контейнерных площадок с основанием и ограждением под различное количество бункеров, а также устройство одной площадки с основанием и навесом для крупногабаритных отходов.
Выполнять обязательства по контракту подрядчик будет до конца текущего года.
Подпишитесь на наш Telegram-канал, чтобы всегда быть на связи!